Реализация объекта недвижимости приостановлена

Информация о квартире

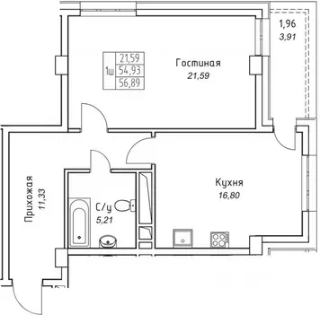
57.0 м2
Площадь
1
Комната
11
Этаж
16
Этажность
Развернуть

1-к кв. Саха (Якутия), Якутск 11-й кв-л, (57.51 м)

Продаётся 1-комнатная квартира в строящемся доме (Дом 14), срок сдачи: I-кв. 2026, общей площадью 57.51 кв.м., на 11 этаже. Уверенность в застройщике это то, что отличает наш жилой комплекс от многих других. Проектом занимается известный, добросовестный и опытный застройщик - ООО строительная компания Прометей , работающий на якутском рынке более 17 лет и выполнивший за свою деятельность много хороших и достойных проектов. Владея собственным бетонным заводом, компания сама выпускает строительные материалы: бетон всех марок, цементные строительные растворы, полистерол, конструкции, а также имеет весь комплект строительной техники от кранов всех марок и типов до бетононасосов. Входит в тройку самых крупных строительных организаций Республики. Уставной капитал составляет .. Одним словом, ЖК Прометей - это жилье, которое делает проживание комфортным, гармоничным и очень уютным. А прогулки по парковой зоне окажутся приятным дополнением к проживанию.

Читать полностью

    Реализация объекта недвижимости приостановлена

    Не нашли подходящего объявления?

    Оставьте заявку, и наши риэлторы подберут квартиру в новостройке в районе Якутска

    (0)