8 533 500 Р 105 400 $ или 90 990

Информация о квартире

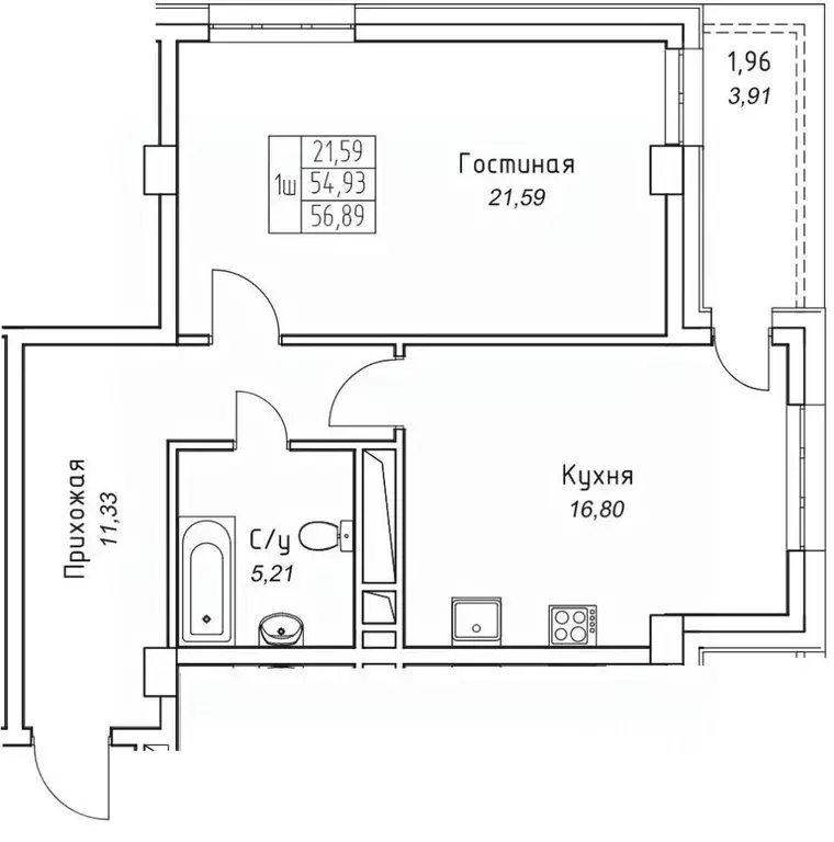
56 м2
Площадь
1
Комната
14
Этаж
16
Этажность
Развернуть
Агент
+7 (992) 703-56-48
Начать чат с агентом

1-к кв. Саха (Якутия), Якутск 11-й кв-л, (56.89 м)

Продаётся 1-комнатная квартира в строящемся доме (Дом 14), срок сдачи: I-кв. 2026, общей площадью 56.89 кв.м., на 14 этаже. Уверенность в застройщике это то, что отличает наш жилой комплекс от многих других. Проектом занимается известный, добросовестный и опытный застройщик - ООО строительная компания Прометей , работающий на якутском рынке более 17 лет и выполнивший за свою деятельность много хороших и достойных проектов. Владея собственным бетонным заводом, компания сама выпускает строительные материалы: бетон всех марок, цементные строительные растворы, полистерол, конструкции, а также имеет весь комплект строительной техники от кранов всех марок и типов до бетононасосов. Входит в тройку самых крупных строительных организаций Республики. Уставной капитал составляет .. Одним словом, ЖК Прометей - это жилье, которое делает проживание комфортным, гармоничным и очень уютным. А прогулки по парковой зоне окажутся приятным дополнением к проживанию.

Читать полностью
    Позвонить Написать
    8 533 500 Р105 400 $ или 90 990
    Агент
    +7 (992) 703-56-48
    Начать чат с агентом
    Похожие предложения в Якутске
    2-к кв. Саха (Якутия), Якутск пос. Геологов,  (56.7 м) - Фото 1
    2-к кв. Саха (Якутия), Якутск пос. Геологов,  (56.7 м) - Фото 2
    2-комнатная квартира, общая площадь 56м²

    Продаётся 2-комнатная квартира в строящемся доме (Дом 4/7), срок сдачи: IV-кв. 2026, общей площадью 56.7 кв.м., на 9 этаже. Новый жилой комплекс Сосновый бор от Специализированного застройщика СИТИасположен по адресу: г. Якутск, улица Три Сосны.
    • 56 м²
    • 2-ком
    • 9/16 эт.
    8 505 000 Р
    Агент
    +7 (933) Показать номер
    Посмотреть контакты
    2-к кв. Саха (Якутия), Якутск пос. Геологов,  (56.66 м) - Фото 1
    2-к кв. Саха (Якутия), Якутск пос. Геологов,  (56.66 м) - Фото 2
    2-комнатная квартира, общая площадь 56м²

    Продаётся 2-комнатная квартира в строящемся доме (Дом 4/7), срок сдачи: IV-кв. 2026, общей площадью 56.66 кв.м., на 8 этаже. Новый жилой комплекс Сосновый бор от Специализированного застройщика СИТИасположен по адресу: г. Якутск, улица Три Сосны.
    • 56 м²
    • 2-ком
    • 8/16 эт.
    8 499 000 Р
    Агент
    +7 (933) Показать номер
    Посмотреть контакты
    2-к кв. Саха (Якутия), Якутск пос. Геологов,  (56.7 м) - Фото 1
    2-к кв. Саха (Якутия), Якутск пос. Геологов,  (56.7 м) - Фото 2
    2-комнатная квартира, общая площадь 56м²

    Продаётся 2-комнатная квартира в строящемся доме (Дом 4/7), срок сдачи: IV-кв. 2026, общей площадью 56.7 кв.м., на 10 этаже. Новый жилой комплекс Сосновый бор от Специализированного застройщика СИТИасположен по адресу: г. Якутск, улица Три Сосны.
    • 56 м²
    • 2-ком
    • 10/16 эт.
    8 505 000 Р
    Агент
    +7 (933) Показать номер
    Посмотреть контакты
    2-к кв. Саха (Якутия), Якутск пос. Геологов,  (56.63 м) - Фото 1
    2-к кв. Саха (Якутия), Якутск пос. Геологов,  (56.63 м) - Фото 2
    2-комнатная квартира, общая площадь 56м²

    Продаётся 2-комнатная квартира в строящемся доме (Дом 4/7), срок сдачи: IV-кв. 2026, общей площадью 56.63 кв.м., на 2 этаже. Новый жилой комплекс Сосновый бор от Специализированного застройщика СИТИасположен по адресу: г. Якутск, улица Три Сосны.
    • 56 м²
    • 2-ком
    • 2/16 эт.
    8 494 500 Р
    Агент
    +7 (933) Показать номер
    Посмотреть контакты
    2-к кв. Саха (Якутия), Якутск пос. Геологов,  (56.66 м) - Фото 1
    2-к кв. Саха (Якутия), Якутск пос. Геологов,  (56.66 м) - Фото 2
    2-комнатная квартира, общая площадь 56м²

    Продаётся 2-комнатная квартира в строящемся доме (Дом 4/7), срок сдачи: IV-кв. 2026, общей площадью 56.66 кв.м., на 11 этаже. Новый жилой комплекс Сосновый бор от Специализированного застройщика СИТИасположен по адресу: г. Якутск, улица Три Сосны.
    • 56 м²
    • 2-ком
    • 11/16 эт.
    8 499 000 Р
    Агент
    +7 (933) Показать номер
    Посмотреть контакты

    Не нашли подходящего объявления?

    Оставьте заявку, и наши риэлторы подберут квартиру в новостройке в районе Якутска

    (0)