22 000 000 Р 281 200 $ или 242 200

Информация о квартире

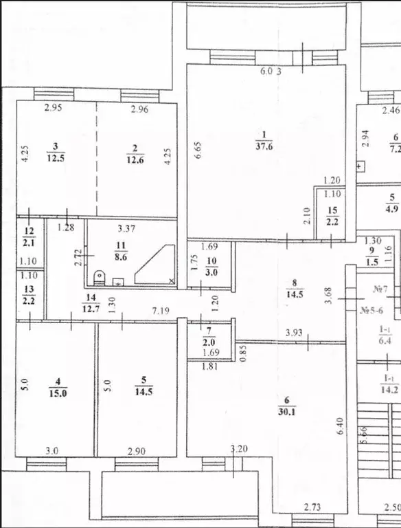
85 м2
Площадь
22 м2
Кухня
2
Комнаты
6
Этаж
9
Этажность

Дополнительная информация

Тип дома
блочный
Развернуть
Агент
+7 (914) 296-37-13
Начать чат с агентом

2-к кв. Саха (Якутия), Якутск ул. Кирова, 17к5 (85.0 м)

Продаю 2-х комнатную красивую, просторную квартиру по Кирова 17/5. В квартире 85 кв.м., плюс 11 кв.м. утепленной лоджией. Готовый качественный современный ремонт и автономное газовое отопление делают эту квартиру комфортным местом для жизни. Без долгов и обременений, один собственник. Она готова к владению нового владельца. Район идеально подходит для жизни и имеет все необходимые удобства в шаговой доступности, такие как Дворец детства, Бассейны Чолбон и Самородок, Талое озеро, цирк, Модун, Синема центр, ТРК Туймаада , парк и многое другое. Квартира находится близко к остановкам и удобно подъезжать с улиц Кирова, Орджоникидзе и Октябрьской. На этаже только 4 квартиры, на подъезде есть консьерж, видеонаблюдение и импортный лифт. Это отличный вариант для тех, кто ищет просторную и уютную квартиру в самом сердце города. Код пользователя: 118426Номер в базе: 6957021

Читать полностью

    Для того, чтобы купить двухкомнатную квартиру по адресу: Якутск, ул. Кирова, 17к5, позвоните по телефону +7 (914) 296-37-13. Торопитесь! Объявление №30090252665 о продаже двухкомнатной квартиры опубликовано 18 ноября 2025.

    Позвонить Написать
    22 000 000 Р281 200 $ или 242 200
    Агент
    +7 (914) 296-37-13
    Начать чат с агентом
    Похожие предложения
    4-к кв. Саха (Якутия), Якутск ул. Федора Попова, 17/2 (177.0 м) - Фото 1
    4-комнатная квартира, общая площадь 177м²

    Продается 4 комнатная квартира, общая площадь 177 кв.м, Якутск, 2 санузла, постирочная, гардеробные, 2 застекленных балкона. В стоимость ВКЛЮЧЕН собственный теплый гараж (24 м).
    • 177 м²
    • 4-ком
    • 2/5 эт.
    21 500 000 Р
    Агент
    +7 (914) Показать номер
    Посмотреть контакты
    4-к кв. Саха (Якутия), Якутск ул. Федора Попова, 17/2 (172.0 м) - Фото 1
    4-комнатная квартира, общая площадь 172м², жилая 92м², кухня 30м²

    4-к. кв., 177 м, с гаражом 24 м, р-н Крытого рынка Общее: 4 комнаты, 177 м, 2/5 эт., кирпичный дом, 1999 г.п. Состояние: Косметический ремонт. Мебель/техника — по договоренности. Планировка: 2 санузла, постирочная, гардеробные, 2 застекленных балкона....
    • 172 м²
    • 4-ком
    • 2/5 эт.
    21 500 000 Р
    Агент
    +7 (914) Показать номер
    Посмотреть контакты
    3-к кв. Саха (Якутия), Якутск Вилюйский тракт, 3-й км, 9А (92.0 м) - Фото 1
    3-к кв. Саха (Якутия), Якутск Вилюйский тракт, 3-й км, 9А (92.0 м) - Фото 2
    3-комнатная квартира, общая площадь 92м²

    Продается 3 комнатная квартира, общая площадь 92 кв.м, Якутск, Продаётся вместе мебелью и бытовой техникой
    • 92 м²
    • 3-ком
    • 16/16 эт.
    22 500 000 Р
    Агент
    +7 (914) Показать номер
    Посмотреть контакты
    4-к кв. Саха (Якутия), Якутск ул. Ярославского, 28 (128.8 м) - Фото 1
    4-к кв. Саха (Якутия), Якутск ул. Ярославского, 28 (128.8 м) - Фото 2
    4-комнатная квартира, общая площадь 128м², кухня 5м²

    Продаётся просторная 4-комнатная квартира площадью 128,8 кв.м расположена в капитальном доме 2002 года постройки на 3 этаже 10-этажного здания. Объект отличается рациональной планировкой, идеально подходящей для жизни большой семьи: изолированные комнаты,...
    • 128 м²
    • 4-ком
    • 3/10 эт.
    22 250 000 Р
    Агент
    +7 (914) Показать номер
    Посмотреть контакты
    4-комнатная квартира: Якутск, улица Фёдора Попова, 17/2 (177 м) - Фото 1
    4-комнатная квартира, общая площадь 177м²

    2 санузла, постирочная, гардеробные, 2 застекленных балкона. В стоимость ВКЛЮЧЕН собственный теплый гараж (24 м). Продается квартира в Якутске, отличная инфраструктура, удобный район.
    • 177 м²
    • 4-ком
    • 2/5 эт.
    21 500 000 Р
    Агент
    +7 (984) Показать номер
    Посмотреть контакты

    Не нашли подходящего объявления?

    Оставьте заявку, и наши риэлторы подберут квартиру в районе Якутска

    (0)