4 100 000 Р 49 630 $ или 42 330

Информация о квартире

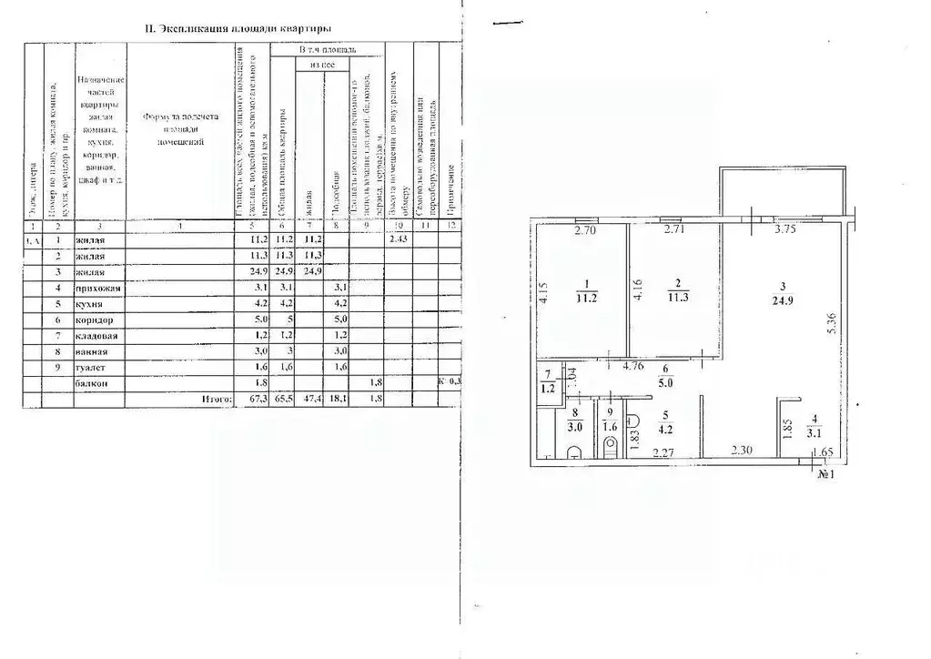
67 м2
Площадь
3
Комнаты
1
Этаж
2
Этажность
Развернуть
Агент
Лидер
+7 (914) 293-86-86
Начать чат с агентом

3-к кв. Саха (Якутия), Якутск Борисовка-1 мкр, 12 (67.3 м)

Продается 3 комнатная квартира, общая площадь 67,3 кв.м, Якутск, имеется гардеробная комната. В квартире нет несущих стен, так что можно сделать абсолютно любую удобную для вас планировку.

Читать полностью

    Для того, чтобы купить трехкомнатную квартиру по адресу: Якутск, позвоните по телефону +7 (914) 293-86-86. Торопитесь! Объявление №30089925697 о продаже трехкомнатной квартиры опубликовано 2 дня назад.

    Позвонить Написать
    4 100 000 Р49 630 $ или 42 330
    Агент
    Лидер
    +7 (914) 293-86-86
    Начать чат с агентом
    Похожие предложения
    1-к кв. Саха (Якутия), Якутск ул. Летчицы Веры Захаровой, 15/2 (32.7 ... - Фото 1
    1-к кв. Саха (Якутия), Якутск ул. Летчицы Веры Захаровой, 15/2 (32.7 ... - Фото 2
    1-комнатная квартира, общая площадь 32м², кухня 5м²

    Продается уютная 1-о комнатная квартира в мкр Звездный по ул. лётчицы Веры Захаровой, 15/2. Прекрасный вариант для молодой семьи. Для тех, кто хочет жить в новом доме, в тихом, активно развивающемся районе.Площадь: 32,7 м2, Район: мкрн Звездный, Этаж/Этажность:...
    • 32 м²
    • 1-ком
    • 4/5 эт.
    • монолит
    4 200 000 Р
    Агент
    +7 (984) Показать номер
    Посмотреть контакты
    1-к кв. Саха (Якутия), Якутск ул. 50 лет Советской Армии, 23 (33.0 м) - Фото 1
    1-к кв. Саха (Якутия), Якутск ул. 50 лет Советской Армии, 23 (33.0 м) - Фото 2
    1-комнатная квартира, общая площадь 33м², кухня 10м²

    Продается 1 комнатная квартира, общая площадь 33 кв.м, Якутск, Ремонт, мебель ( холодильник, кухонная плита, стиральная машина) и техника входят в стоимость
    • 33 м²
    • 1-ком
    • 5/5 эт.
    4 200 000 Р
    Агент
    +7 (914) Показать номер
    Посмотреть контакты
    3-к кв. Саха (Якутия), Якутск Борисовка-1 мкр, 34 (40.0 м) - Фото 1
    3-к кв. Саха (Якутия), Якутск Борисовка-1 мкр, 34 (40.0 м) - Фото 2
    3-комнатная квартира, общая площадь 40м²

    Продается 3 комнатная квартира, общая площадь 40 кв.м, Якутск, Мебель, бытовая техника, косметический ремонт
    • 40 м²
    • 3-ком
    • 2/2 эт.
    4 000 000 Р
    Агент
    +7 (914) Показать номер
    Посмотреть контакты
    студия, общая площадь 22м², кухня 5м²

    В продаже квартира студияПо адресу г. Якутск, ул. Можайского, 2/3Этаж 4 из 5Дом блочный 2012 г.пПлощадь 22,3 кв.мСанузел совмещенныйРазвитая инфраструктура: в шаговой доступности МОБУ Средняя общеобразовательная школа №24 им. С.И. Климакова, МОБУ Средняя...
    • 22 м²
    • студия-ком
    • 4/5 эт.
    4 100 000 Р
    Агент
    +7 (924) Показать номер
    Посмотреть контакты
    Студия Саха (Якутия), Якутск ул. Билибина, 17/3 (34.0 м) - Фото 1
    Студия Саха (Якутия), Якутск ул. Билибина, 17/3 (34.0 м) - Фото 2
    студия, общая площадь 34м², кухня 5м²

    Покупай сейчас - плати потом На данный объект доступна рассрочка на выгодных условияхПродается квартира-студия в пос. Геологов, по ул. Билибина 17/3. Дом монолитно-каркасный, 2016 г.п., квартира расположена на 2 этаже из 5, общая площадь квартиры составляет...
    • 34 м²
    • студия-ком
    • 2/5 эт.
    • блочный
    4 100 000 Р
    Агент
    +7 (914) Показать номер
    Посмотреть контакты

    Не нашли подходящего объявления?

    Оставьте заявку, и наши риэлторы подберут квартиру в районе Якутска

    (0)