Россия, Республика Саха /Якутия/, Якутск, проспект Михаила Николаева, 31/5

Реализация объекта недвижимости приостановлена

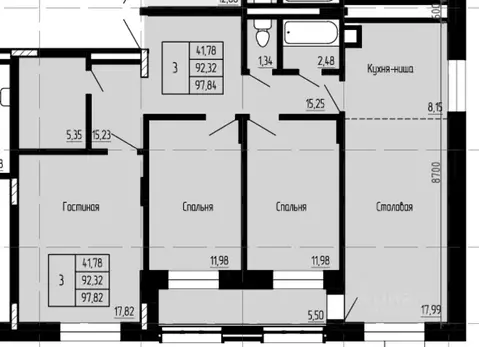
Информация о квартире

83.0 м2
Площадь
43.0 м2
Жилая
11.0 м2
Кухня
3
Комнаты
15
Этаж
16
Этажность
Развернуть

3-к кв. Саха (Якутия), Якутск просп. Михаила Николаева, 31/5 (83.93 м)

Внесен задаток3комнатная квартира с вводом в этом году У застройщика таких квартир нету Жилой комплекс расположен вдоль проспекта Михаила Николаева Эксплуатируемый стилобат с игровой зоной и спортивной площадкой, теплая игровая комната и теплый паркинг.Ввод: 4 квартал 2025г (1очередь) (планируется ранний ввод)Дом комфорт классаАвтономное отоплениеЭтаж 15 из 16

Читать полностью

    Реализация объекта недвижимости приостановлена

    Не нашли подходящего объявления?

    Оставьте заявку, и наши риэлторы подберут квартиру в новостройке в районе Якутска

    (0)