8 292 550 Р 101 600 $ или 87 520

Информация о квартире

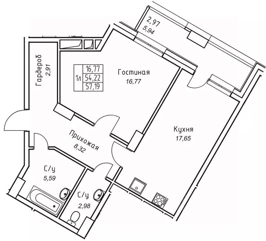
57 м2
Площадь
2
Комнаты
9
Этаж
16
Этажность
Развернуть
Агент
+7 (992) 703-56-48
Начать чат с агентом

2-к кв. Саха (Якутия), Якутск 11-й кв-л, (57.19 м)

Продаётся 2-комнатная квартира в строящемся доме (Дом 15), срок сдачи: III-кв. 2027, общей площадью 57.19 кв.м., на 9 этаже. Уверенность в застройщике это то, что отличает наш жилой комплекс от многих других. Проектом занимается известный, добросовестный и опытный застройщик - ООО строительная компания Прометей , работающий на якутском рынке более 17 лет и выполнивший за свою деятельность много хороших и достойных проектов. Владея собственным бетонным заводом, компания сама выпускает строительные материалы: бетон всех марок, цементные строительные растворы, полистерол, конструкции, а также имеет весь комплект строительной техники от кранов всех марок и типов до бетононасосов. Входит в тройку самых крупных строительных организаций Республики. Уставной капитал составляет .. Одним словом, ЖК Прометей - это жилье, которое делает проживание комфортным, гармоничным и очень уютным. А прогулки по парковой зоне окажутся приятным дополнением к проживанию.

Читать полностью
    Позвонить Написать
    8 292 550 Р101 600 $ или 87 520
    Агент
    +7 (992) 703-56-48
    Начать чат с агентом
    Похожие предложения в Якутске
    1-к кв. Саха (Якутия), Якутск ул. Новопортовская, 1А/1 (35.4 м) - Фото 1
    1-к кв. Саха (Якутия), Якутск ул. Новопортовская, 1А/1 (35.4 м) - Фото 2
    1-комнатная квартира, общая площадь 35м², жилая 14м²

    Продается 1-комн квартира 179 в Жилом квартале Ленские Высоты, Корпус 1
    • 35 м²
    • 1-ком
    • 10/16 эт.
    8 262 360 Р
    Агент
    +7 (901) Показать номер
    Посмотреть контакты
    1-к кв. Саха (Якутия), Якутск ул. Новопортовская, 1А/1 (35.4 м) - Фото 1
    1-к кв. Саха (Якутия), Якутск ул. Новопортовская, 1А/1 (35.4 м) - Фото 2
    1-комнатная квартира, общая площадь 35м², жилая 14м²

    Продается 1-комн квартира 172 в Жилом квартале Ленские Высоты, Корпус 1
    • 35 м²
    • 1-ком
    • 9/16 эт.
    8 230 500 Р
    Агент
    +7 (901) Показать номер
    Посмотреть контакты
    2-к кв. Саха (Якутия), Якутск ул. Новопортовская, 1Д (36.7 м) - Фото 1
    2-к кв. Саха (Якутия), Якутск ул. Новопортовская, 1Д (36.7 м) - Фото 2
    2-комнатная квартира, общая площадь 36м², жилая 23м²

    Продается 2-комн квартира 188 в Жилом квартале Ленские Высоты, Дом 9
    • 36 м²
    • 2-ком
    • 9/16 эт.
    8 356 590 Р
    Агент
    +7 (901) Показать номер
    Посмотреть контакты
    2-к кв. Саха (Якутия), Якутск 11-й кв-л,  (57.19 м) - Фото 1
    2-к кв. Саха (Якутия), Якутск 11-й кв-л,  (57.19 м) - Фото 2
    2-комнатная квартира, общая площадь 57м²

    Продаётся 2-комнатная квартира в строящемся доме (Дом 15), срок сдачи: III-кв. 2027, общей площадью 57.19 кв.м., на 10 этаже. Уверенность в застройщике это то, что отличает наш жилой комплекс от многих других. Проектом занимается известный, добросовестный...
    • 57 м²
    • 2-ком
    • 10/16 эт.
    8 292 550 Р
    Агент
    +7 (992) Показать номер
    Посмотреть контакты
    1-к кв. Саха (Якутия), Якутск 11-й кв-л,  (57.51 м) - Фото 1
    1-к кв. Саха (Якутия), Якутск 11-й кв-л,  (57.51 м) - Фото 2
    1-комнатная квартира, общая площадь 57м²

    Продаётся 1-комнатная квартира в строящемся доме (Дом 15), срок сдачи: III-кв. 2027, общей площадью 57.51 кв.м., на 11 этаже. Уверенность в застройщике это то, что отличает наш жилой комплекс от многих других. Проектом занимается известный, добросовестный...
    • 57 м²
    • 1-ком
    • 11/16 эт.
    8 338 950 Р
    Агент
    +7 (992) Показать номер
    Посмотреть контакты

    Не нашли подходящего объявления?

    Оставьте заявку, и наши риэлторы подберут квартиру в новостройке в районе Якутска

    (0)