8 491 500 Р 104 900 $ или 90 260

Информация о квартире

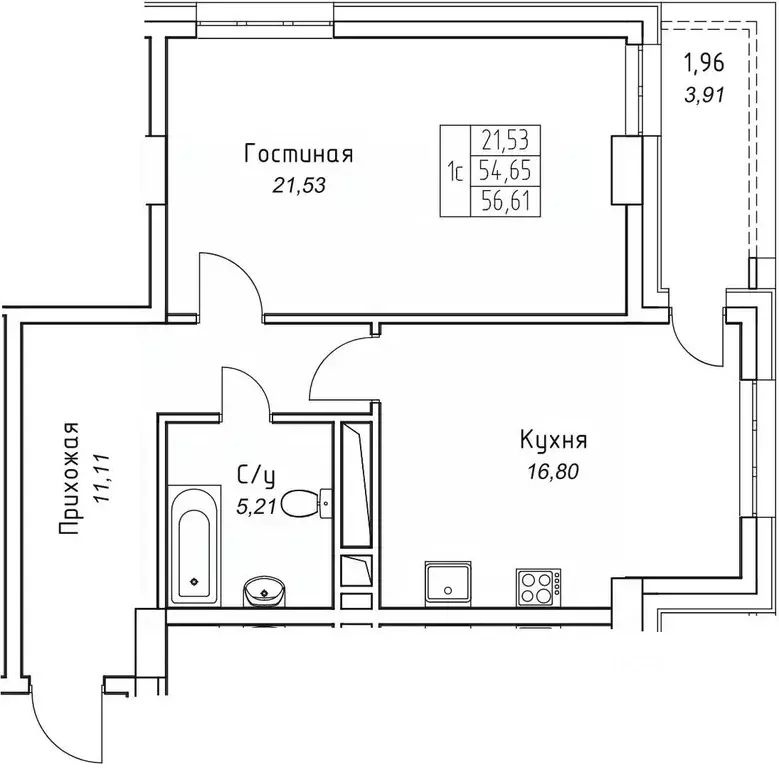
56 м2
Площадь
1
Комната
9
Этаж
16
Этажность
Развернуть
Агент
+7 (992) 703-56-48
Начать чат с агентом

1-к кв. Саха (Якутия), Якутск 11-й кв-л, (56.61 м)

Продаётся 1-комнатная квартира в строящемся доме (Дом 14), срок сдачи: I-кв. 2026, общей площадью 56.61 кв.м., на 9 этаже. Уверенность в застройщике это то, что отличает наш жилой комплекс от многих других. Проектом занимается известный, добросовестный и опытный застройщик - ООО строительная компания Прометей , работающий на якутском рынке более 17 лет и выполнивший за свою деятельность много хороших и достойных проектов. Владея собственным бетонным заводом, компания сама выпускает строительные материалы: бетон всех марок, цементные строительные растворы, полистерол, конструкции, а также имеет весь комплект строительной техники от кранов всех марок и типов до бетононасосов. Входит в тройку самых крупных строительных организаций Республики. Уставной капитал составляет .. Одним словом, ЖК Прометей - это жилье, которое делает проживание комфортным, гармоничным и очень уютным. А прогулки по парковой зоне окажутся приятным дополнением к проживанию.

Читать полностью
    Позвонить Написать
    8 491 500 Р104 900 $ или 90 260
    Агент
    +7 (992) 703-56-48
    Начать чат с агентом
    Похожие предложения в Якутске
    2-к кв. Саха (Якутия), Якутск ул. Чкалова, 39А (45.06 м) - Фото 1
    2-комнатная квартира, общая площадь 45м²

    Продаётся 2-комнатная квартира в строящемся доме (д. 56/2), срок сдачи: IV-кв. 2026, общей площадью 45.06 кв.м., на 9 этаже. Новый жилой дом от Специализированного застройщика ТЕКТАасположен в г. Якутск на ул. Чернышевского.
    • 45 м²
    • 2-ком
    • 9/16 эт.
    8 485 380 Р
    Агент
    +7 (800) Показать номер
    Посмотреть контакты
    2-к кв. Саха (Якутия), Якутск ул. Свердлова, 18 (44.0 м) - Фото 1
    2-комнатная квартира, общая площадь 44м²

    Продается 2 комнатная квартира в новостройке, общая площадь 44 кв.м, Якутск, Без отделки
    • 44 м²
    • 2-ком
    • 10/16 эт.
    8 400 000 Р
    Агент
    +7 (914) Показать номер
    Посмотреть контакты
    2-к кв. Саха (Якутия), Якутск ул. Новопортовская, 1А/1 (39.0 м) - Фото 1
    2-к кв. Саха (Якутия), Якутск ул. Новопортовская, 1А/1 (39.0 м) - Фото 2
    2-комнатная квартира, общая площадь 39м², жилая 22м²

    Продается 2-комн квартира 87 в Жилом квартале Ленские Высоты, Корпус 1
    • 39 м²
    • 2-ком
    • 12/16 эт.
    8 580 000 Р
    Агент
    +7 (901) Показать номер
    Посмотреть контакты
    2-к кв. Саха (Якутия), Якутск 11-й кв-л,  (57.51 м) - Фото 1
    2-к кв. Саха (Якутия), Якутск 11-й кв-л,  (57.51 м) - Фото 2
    2-комнатная квартира, общая площадь 57м²

    Продаётся 2-комнатная квартира в строящемся доме (Дом 15), срок сдачи: III-кв. 2027, общей площадью 57.51 кв.м., на 4 этаже. Уверенность в застройщике это то, что отличает наш жилой комплекс от многих других. Проектом занимается известный, добросовестный...
    • 57 м²
    • 2-ком
    • 4/16 эт.
    8 511 480 Р
    Агент
    +7 (992) Показать номер
    Посмотреть контакты
    2-к кв. Саха (Якутия), Якутск 11-й кв-л,  (57.51 м) - Фото 1
    2-к кв. Саха (Якутия), Якутск 11-й кв-л,  (57.51 м) - Фото 2
    2-комнатная квартира, общая площадь 57м²

    Продаётся 2-комнатная квартира в строящемся доме (Дом 15), срок сдачи: III-кв. 2027, общей площадью 57.51 кв.м., на 2 этаже. Уверенность в застройщике это то, что отличает наш жилой комплекс от многих других. Проектом занимается известный, добросовестный...
    • 57 м²
    • 2-ком
    • 2/16 эт.
    8 511 480 Р
    Агент
    +7 (992) Показать номер
    Посмотреть контакты

    Не нашли подходящего объявления?

    Оставьте заявку, и наши риэлторы подберут квартиру в новостройке в районе Якутска

    (0)