Реализация объекта недвижимости приостановлена

Информация о квартире

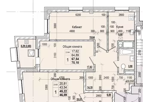
67.0 м2
Площадь
2
Комнаты
9
Этаж
16
Этажность
Развернуть

2-к кв. Саха (Якутия), Якутск ул. Чкалова (67.86 м)

Продаётся 2-комнатная квартира в строящемся доме (1 этап), срок сдачи: IV-кв. 2027, общей площадью 67.86 кв.м., на 9 этаже. Новый жилой комплекс от застройщика ГК СЭТТЭасположен по адресу: г. Якутск по ул. Гастелло.

Читать полностью

    Реализация объекта недвижимости приостановлена

    Не нашли подходящего объявления?

    Оставьте заявку, и наши риэлторы подберут квартиру в новостройке в районе Якутска

    (0)