Реализация объекта недвижимости приостановлена

Информация о квартире

65.0 м2
Площадь
2
Комнаты
14
Этаж
16
Этажность
Развернуть

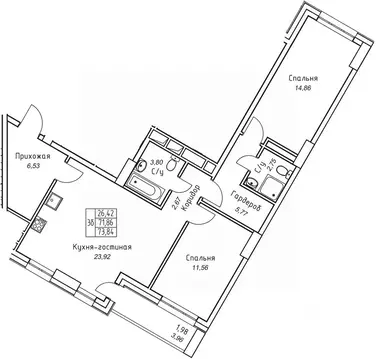
2-к кв. Саха (Якутия), Якутск 11-й кв-л, (65.56 м)

Продаётся 2-комнатная квартира в строящемся доме (Корпус 1), срок сдачи: I-кв. 2026, общей площадью 65.56 кв.м., на 14 этаже. Новый жилой комплекс от Специализированного застройщика Проф-Стройасположен по адресу: г. Якутск, по пр. Михаила Николаева.

Читать полностью

    Реализация объекта недвижимости приостановлена

    Не нашли подходящего объявления?

    Оставьте заявку, и наши риэлторы подберут квартиру в новостройке в районе Якутска

    (0)