10 419 300 Р 128 700 $ или 111 600

Информация о квартире

61 м2
Площадь
2
Комнаты
11
Этаж
12
Этажность
Развернуть
Агент
+7 (800) 333-03-93
Начать чат с агентом

2-к кв. Саха (Якутия), Якутск Алгыс жилой комплекс (61.29 м)

Продаётся 2-комнатная квартира в строящемся доме (Корпус 2), срок сдачи: I-кв. 2026, общей площадью 61.84 кв.м., на 11 этаже. Новый жилой квартал от застройщика УТУМ+ расположен в 13 квартале города Якутск в районе ул. Автодорожная, 31.

Читать полностью
    Позвонить Написать
    10 419 300 Р128 700 $ или 111 600
    Агент
    +7 (800) 333-03-93
    Начать чат с агентом
    Похожие предложения в Якутске
    2-к кв. Саха (Якутия), Якутск Алгыс жилой комплекс (61.36 м) - Фото 1
    2-комнатная квартира, общая площадь 61м²

    Продаётся 2-комнатная квартира в строящемся доме (Корпус 2), срок сдачи: I-кв. 2026, общей площадью 61.66 кв.м., на 9 этаже. Новый жилой квартал от застройщика УТУМ+ расположен в 13 квартале города Якутск в районе ул. Автодорожная, 31.
    • 61 м²
    • 2-ком
    • 9/12 эт.
    10 431 200 Р
    Агент
    +7 (800) Показать номер
    Посмотреть контакты
    2-к кв. Саха (Якутия), Якутск ул. Строителей, 12 (54.0 м) - Фото 1
    2-к кв. Саха (Якутия), Якутск ул. Строителей, 12 (54.0 м) - Фото 2
    2-комнатная квартира, общая площадь 54м²

    Продается 2 комнатная квартира в новостройке, общая площадь 54 кв.м, Якутск, Мебель, техника остается
    • 54 м²
    • 2-ком
    • 3/9 эт.
    9 800 000 Р
    Агент
    +7 (914) Показать номер
    Посмотреть контакты
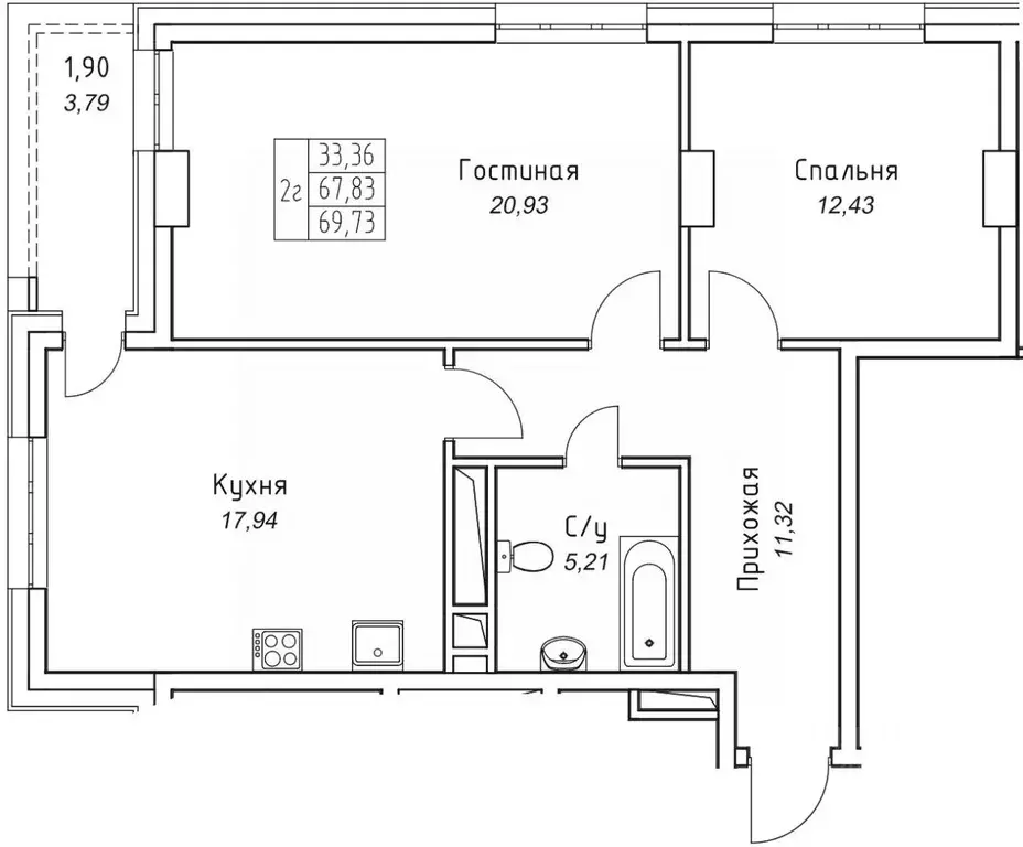
    2-к кв. Саха (Якутия), Якутск 11-й кв-л,  (69.73 м) - Фото 1
    2-к кв. Саха (Якутия), Якутск 11-й кв-л,  (69.73 м) - Фото 2
    2-комнатная квартира, общая площадь 69м²

    Продаётся 2-комнатная квартира в строящемся доме (Дом 15), срок сдачи: III-кв. 2027, общей площадью 69.73 кв.м., на 7 этаже. Уверенность в застройщике это то, что отличает наш жилой комплекс от многих других. Проектом занимается известный, добросовестный...
    • 69 м²
    • 2-ком
    • 7/16 эт.
    10 320 040 Р
    Агент
    +7 (992) Показать номер
    Посмотреть контакты
    2-к кв. Саха (Якутия), Якутск ул. Лонгинова, 28Б (68.0 м) - Фото 1
    2-комнатная квартира, общая площадь 68м²

    Продается 2 комнатная квартира в новостройке, общая площадь 68 кв.м, Якутск, Торг.
    • 68 м²
    • 2-ком
    • 6/9 эт.
    10 000 000 Р
    Агент
    +7 (914) Показать номер
    Посмотреть контакты
    2-к кв. Саха (Якутия), Якутск ул. Чкалова (66.69 м) - Фото 1
    2-к кв. Саха (Якутия), Якутск ул. Чкалова (66.69 м) - Фото 2
    2-комнатная квартира, общая площадь 66м²

    Продаётся 2-комнатная квартира в строящемся доме (1 этап), срок сдачи: IV-кв. 2027, общей площадью 66.69 кв.м., на 2 этаже. Новый жилой комплекс от застройщика ГК СЭТТЭасположен по адресу: г. Якутск по ул. Гастелло.
    • 66 м²
    • 2-ком
    • 2/16 эт.
    10 336 950 Р
    Агент
    +7 (800) Показать номер
    Посмотреть контакты

    Не нашли подходящего объявления?

    Оставьте заявку, и наши риэлторы подберут квартиру в новостройке в районе Якутска

    (0)