Реализация объекта недвижимости приостановлена

Информация о коттедже

158.0 м2
Площадь
2
Этажность
12.0 cоток
Участок

Дополнительная информация

Дом продаётся вместе с участком
есть
Развернуть

Дом в Саха (Якутия), Якутск ул. Три Сосны, 65/6 (158 м)

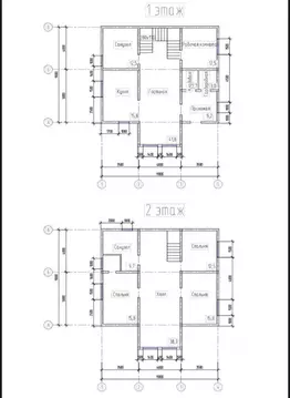
ЭКСКЛЮЗИВ СНИЖЕНИЕ ЦЕНЫ В продаже шикарный дом из кругляка в сосновом бору. Заезд с двух сторон Сергеляхское шоссе и с ул. Три Сосны. Площадь дома 158,4 кв.м. участка 12 соток. На участке не тронутый лес. С домом есть гараж на одно авто (5,5*4м= 21,5 кв.м), подъемные металл.ворота. Дом 2014 года постройки, полностью благоустроен. На первом этаже расположена большая кухня-гостиная(38.8 кв.м.), комната-кабинет(13 кв.м.), прихожая(14,9 кв.м.), санузел (3 кв.м.) (унитаз и раковина), гараж . А так же расположена котельная (8,7 кв.м.). На втором этаже 3 комнаты (13 кв.м. 13,4 кв.м. 17,3 кв.м.), гардеробная(4 кв.м.), санузел (4,3 кв.м.) (раковина и душевая кабина), коридор (6,6 кв.м.). Высота потолков в доме 2,55 м., в гараже 2,7 м. В доме полы 1 этаж покрытие ламинат, 2 этаж шпунт половой, в гараже плитка. Окна большие и часть выходит на солнечную сторону. Вода на 2 куба, септик на 8 кубов, летний водопровод, интернет оптоволокно, видео наблюдение. Отопление газовое, котел риннай навесной. Два балкона (4 кв.м., 6,8 кв.м.) выходят на обе стороны дома. Шикарная открытая терасса (13 кв.м.) для отдыха перед домом. На участке есть 2 теплицы, парники, огород. Растут кусты смородины, малины, жимолости, вишня, много цветов. Заезд к участку с двух сторон. Недалеко расположена Борисовка-3 и остановки ( 6, 7, 25). Огорожен полностью металлическим профлистом. Один взрослый собственник. Гарантия безопасной сделки, полное юридическое сопровождение, помощь в получении ипотеки осуществляется агентством недвижимости Этажи . Код пользователя: 186238Номер в базе: 6953146

Читать полностью

    Реализация объекта недвижимости приостановлена

    Не нашли подходящего объявления?

    Оставьте заявку, и наши риэлторы подберут купить дом в районе Якутска

    (0)