Реализация объекта недвижимости приостановлена

Информация о квартире

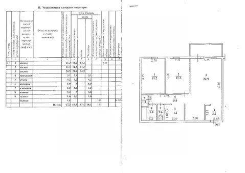
37.0 м2
Площадь
12.0 м2
Кухня
1
Комната
1
Этаж
2
Этажность

Дополнительная информация

Тип дома
деревянный
Развернуть

Квартира, 1 комната, 37.2 м

Объект №190. Продам (Мирный) 1 комнатную квартиру Общ кв - 37,2 кв м Ойунского 24б (1/2 эт) Дом 2014 года постройки Подходит под семейную ипотеку и под ДВИ Выполнен косметический ремонт:- окна и батареи евро- санузел раздельный, выполнен кафелем- большая кухня-гостинная 12 кв м- на полу застелен линолеум- потолки натяжные Установлен Тёплый пол Остаётся вся мебель и техника Установлен кондиционер Квартира очень тёплая Без обременений 1 собственникуб Игорь

Читать полностью

    Реализация объекта недвижимости приостановлена

    Не нашли подходящего объявления?

    Оставьте заявку, и наши риэлторы подберут квартиру в районе Мирного

    (0)